Familievennlig rekkehus med terrasse og hage
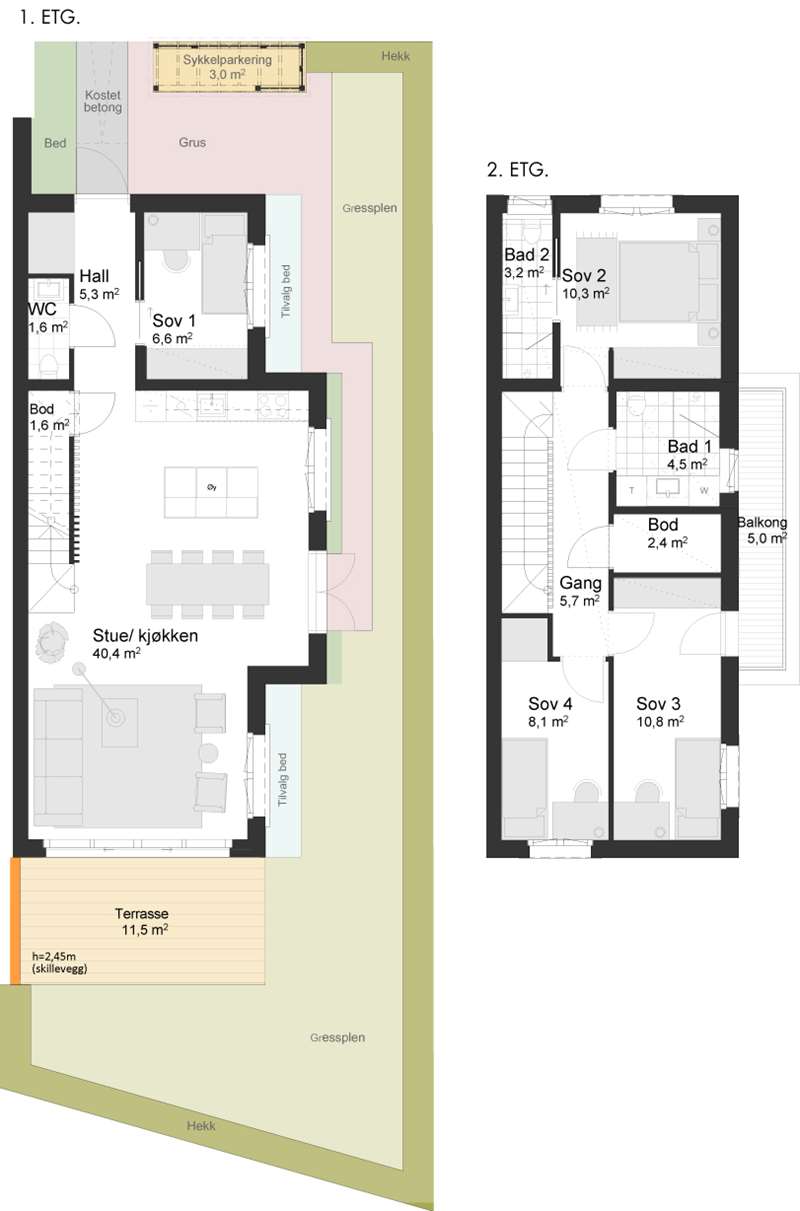
Lekkert 2-plans enderekkehus med stor hage. Rekkehuset har åpen stue- og kjøkkenløsning med direkte utgang til terrasse. Det er 4 soverom, to bad og wc. Balansert ventilasjon sørger for godt inneklima og lave kostnader til oppvarming. Ny bolig kommer med fem års reklamasjonsrett og oppfølging fra utbygger. Boligen selges inkl. 1 parkeringsplass. Forutsatt ledige plasser kan ekstra parkeringsplass kjøpes. Ta kontakt med selger for mer informasjon.
Lnr
133
Rom
5
BRA
117 kvm
BRA-i
112 kvm
BRA-e
5 kvm
P-plass
inkl.
- Pris
- 12,950,000
- Omk. Les mer
- 100 710
- Pris inkl. omk.
- 13 050 710
- Månedlige felleskostnader Les mer
- 2 808
Meld interesse for å holde deg oppdatert om Ballerud Hageby
Meld interesse
