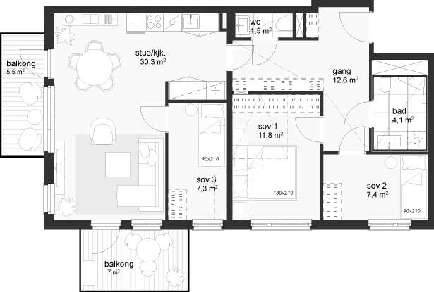
Lys og luftig 4-roms leilighet
Leiligheten bygges med lys en-stavs eikeparkett, generøs takhøyde og store vindusflater. Balansert ventilasjon sørger for godt inneklima og lave kostnader til oppvarming. Som kjøper kan du velge mellom tre ulike interiørstiler uten ekstra kostnad. Konseptene FUNKIS, JÄRVENPÄÄ og LØKKA definerer veggfarger, kjøkkenfronter og -håndtak, benkeplate og fliser på bad. Du kan lese mer om innredningsvalgene i prospektet. Leiligheten kvalifiserer til Grønt Boliglån. Ta kontakt med selger for mer informasjon.
Lnr
140
Rom
4
BRA
85,5 kvm
BRA-i
80,5 kvm
BRA-e
5 kvm
P-plass
inkl.
- Pris
- 7,255,000
- Omk. Les mer
- 45 060
- Pris inkl. omk.
- 7 300 060
- Månedlige felleskostnader Les mer
- 4 117
- Frister og endringer Les mer
Meld interesse for å holde deg oppdatert om Skårerbyen
Meld interesse
