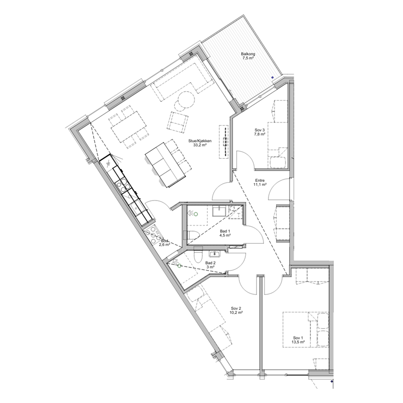
Fin og lys 4-roms leilighet
Lys og luftig leilighet med 2,70 meters takhøyde, store vinduer og hvitpigmentert en-stavs herdet tregulv. Leiligheten har tre soverom, to bad, og en åpen stue- og kjøkkenløsning med plass til både spisegruppe og sofagruppe, samt direkte tilgang til en flott balkong. I tillegg har du tilgang til et 375 kvm stort fellesområde med kaffebar, lounge, selskapsrom, treningssenter, møterom og gjesterom for overnattingsbesøk.
Lnr
C3703
Rom
4
BRA
97,5 kvm
BRA-i
92,5 kvm
BRA-e
5 kvm
- Pris
- 8,600,000
- Omk. Les mer
- 35 391
- Pris inkl. omk.
- 8 635 391
- Månedlige felleskostnader Les mer
- 2 775
Meld interesse for å holde deg oppdatert om Solheimsvatnet Pluss
Meld interesse
