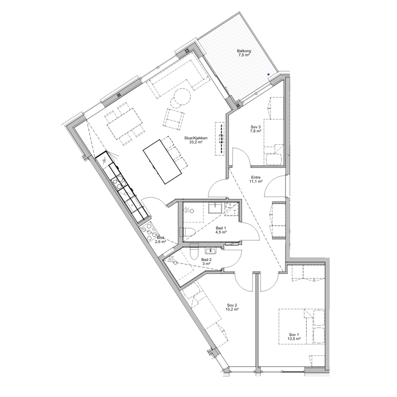
Fin og lys 4-roms leilighet
Lys og luftig leilighet med 2,55 meters takhøyde, store vinduer og hvitpigmentert en-stavs herdet tregulv. Leiligheten har en åpen stue- og kjøkkenløsning med plass til både spisegruppe og sofagruppe, samt direkte tilgang til en romslig balkong. Ved kjøp kan du kostnadsfritt velge mellom tre ulike interiørkonsepter, slik at du kan tilpasse ditt kjøkken og andre rom etter egen smak. I tillegg har du tilgang til et 375 kvm stort fellesområde med kaffebar, lounge, selskapsrom, treningssenter, møterom og gjesterom for overnattingsbesøk.
Lnr
C3604
Rom
4
BRA
97,5 kvm
BRA-i
92,5 kvm
BRA-e
5 kvm
- Pris
- 8,400,000
- Omk. Les mer
- 35 391
- Pris inkl. omk.
- 8 435 391
- Månedlige felleskostnader Les mer
- 2 775
Meld interesse for å holde deg oppdatert om Solheimsvatnet Pluss
Meld interesse
