Lys og luftig leilighet med valgfri planløsning
Leiligheten planlegges med lys en-stavs eikeparkett, generøs takhøyde og store vindusflater. Det leveres vannbåren varme i gulv. Balansert ventilasjon sørger for godt inneklima og lave kostnader til oppvarming. Som kjøper kan du velge kostnadsfritt mellom tre ulike interiørstiler (Nordisk/Klassisk/Kreativ) som inkluderer veggfarger, kjøkkenfronter og -håndtak samt benkeplater. Ny bolig kommer med fem års reklamasjonsrett og oppfølging fra utbygger. Alt dette, pluss frisk sjøluft gjennom soveromsvinduet.
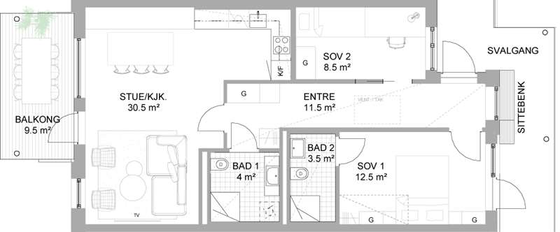
Lnr
A-1304
Rom
4
BRA
82,5 kvm
BRA-i
77,5 kvm
BRA-e
5 kvm
TBA
9,5 kvm
- Pris
- Solgt
Meld interesse for å holde deg oppdatert om Lervig Brygge
Meld interesse
