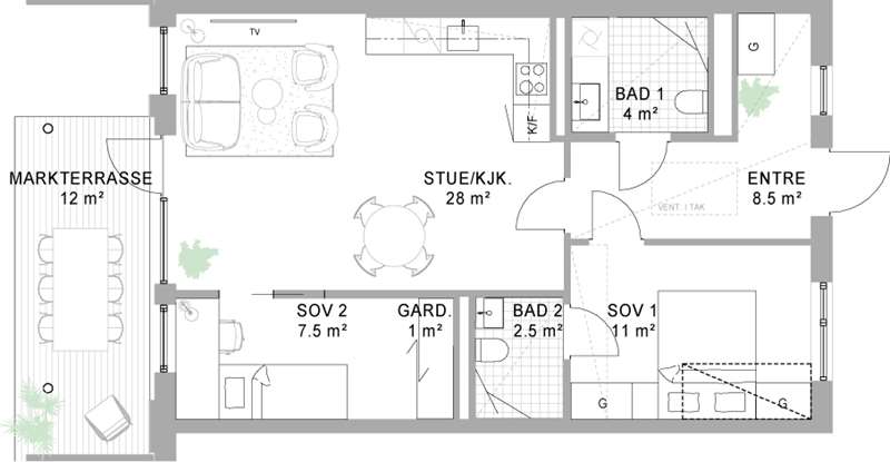
Lys og luftig 3-roms leilighet
Leiligheten planlegges med lys en-stavs eikeparkett, generøs takhøyde og store vindusflater. Det leveres varme i gulv: vannbåren varme i stue/kjøkken og el på bad. Balansert ventilasjon sørger for godt inneklima og lave kostnader til oppvarming. Som kjøper kan du velge kostnadsfritt mellom tre ulike interiørstiler (Nordisk/Klassisk/Kreativ) som inkluderer veggfarger, kjøkkenfronter og -håndtak samt benkeplater. Ny bolig kommer med fem års reklamasjonsrett og oppfølging fra utbygger. Alt dette, pluss frisk sjøluft gjennom soveromsvinduet.
Lnr
A-1106
Rom
3
BRA
68 kvm
- Pris
- Solgt
Meld interesse for å holde deg oppdatert om Lervig Brygge
Meld interesse
